RESIDENCE DU VERGER - DERNIER LOT !!!

Remaufens

Référence : JO-00038

1'330'000 CHF Prix
167 m2 Surface habitable
5.5 Pièces
2 Salle de bains
1 Places de parc
487 Surface du terrain

Description

RESIDENCE DU VERGER - DERNIER LOT !!!

Cette nouvelle promotion est située au coeur du charmant village de Remaufens. Il s'agit d'une villa jumelle d'architecte (deux lots au total) sur une parcelle totale de 864m2.

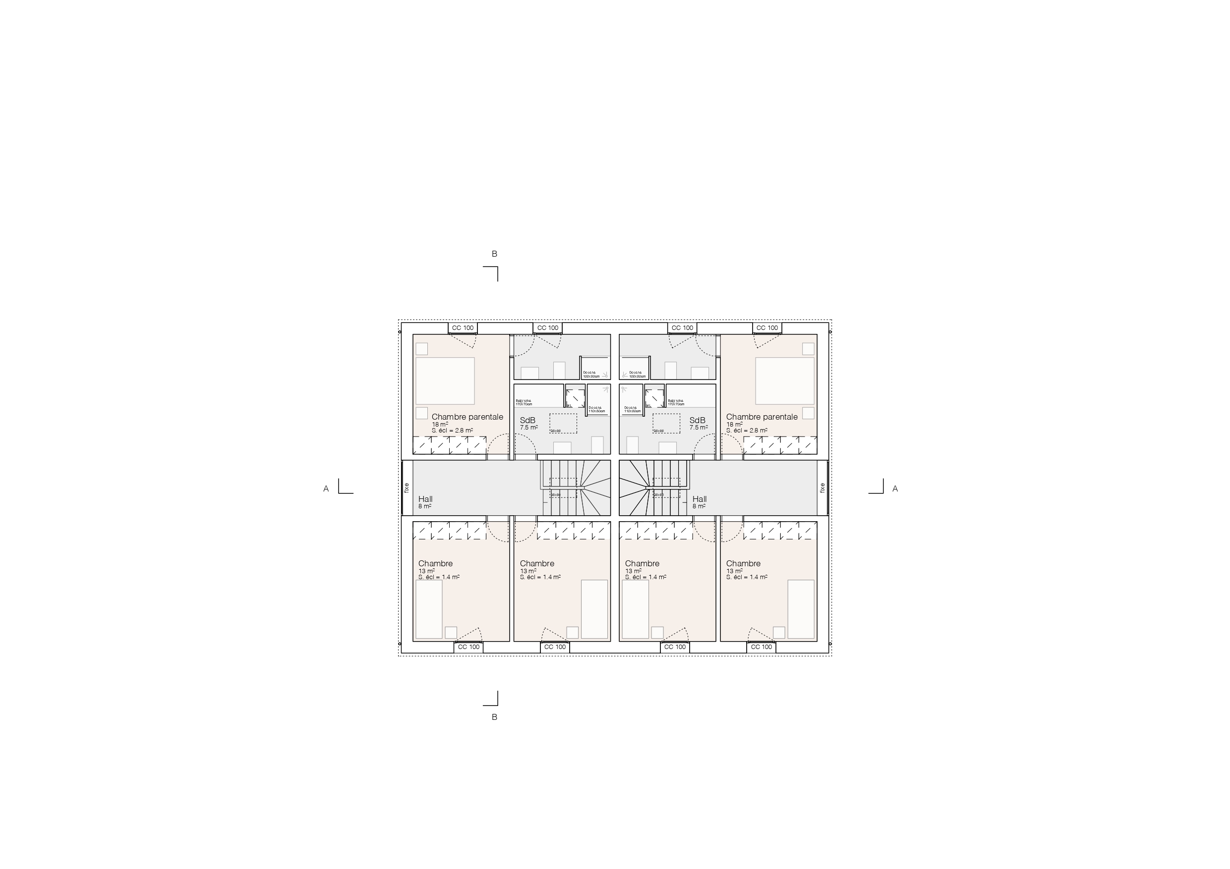
Chacune des deux maisons se compose ainsi: un vaste espace séjour, une cuisine ouverte sur une grande salle à manger, quatre belles chambres, un WC-visiteurs et deux salles de bain (1x WC/douche/lavabo + 1 WC/baignoire/lavabo).

Chacune des maisons est excavée. Il y a donc trois niveaux au total.

Matériaux de construction et finitions de qualité supérieure.

Haute performance énergétique répondant aux normes actuelles en alliant confort et durabilité.

Deux places de parc extérieures par villa (incluses dans le prix affiché) viennent compléter ce projet d'exception.

Plus qu'un lot disponible !

Début de la construction: printemps 2026.

Plans et descriptif sur demande.

 

REMAUFENS, SA REGION ET SES ATOUTS

Remaufens est une charmante commune du district de la Veveyse dans le canton de Fribourg, à la frontière avec le canton de Vaud. Elle bénéficie d'un accès rapide à:

  • 3 min de Châtel-St-Denis
  • 5 min de l'autoroute A12
  • 15 minutes de Vevey
  • 30 minutes de Fribourg
  • 30 minutes de Lausanne

QUALITE DE VIE ET CADRE DE VIE

Le village de Remaufens allie calme, confort, verdure et proximité urbaine. 

  • Vue dégagée sur les Préalpes fribourgeoises
  • Territoire paisible traversé par le Tatrel, entouré de champs et de bois, parfait pour les promenades, la détente et les les loisirs sportifs

COMMERCES ET PRODUITS DU TERROIR

  • Délicieuse pâtisserie et confiserie artisanale au village
  • Boucheries, boulangeries et fromageries artisanales à 3 min
  • Coop à 3 min
  • Migros à 3 min
  • Cafés et restaurants à découvrir au village ou à 3 min

VOUS Y TROUVEREZ AUSSI (tout à 3 min)

  • un cinéma 
  • un complexe sportif
  • une piscine 
  • une patinoire 
  • ...

TRANSPORTS PUBLICS

  • Gare au village
  • Divers arrêts de bus
  • Connection simple et efficace 

ECOLES PRIMAIRES ET SECONDAIRES

  • L'Ecole du Petit Prince située à Attalens accueille les élèves des villages environnants (Basse-Veveyse)
  • Le Cycle d'orientation de la Veveyse (école secondaire) est situé à Châtel-St-Denis
  • La commune de Remaufens bénéficie également d'un accueil extrascolaire pour les enfants scolarisés dans le cercle scolaire de la Basse-Veveyse

REMAUFENS, UN ENDROIT OU IL FAIT BON VIVRE

  • Remaufens offre un cadre de vie rural sophisitiqué avec toutes les infrastructures à portée de main
  • Remaufens est un endroit idéal pour les familles et pour les professionnels pendulaires cherchant calme et accessibilité
  • Remaufens possède est réel potentiel de valorisation immobilière dans un environnement optimal, recherché et structuré

Alors n'hésitez plus et ne manquez pas cette belle opportunité.

 

 

CARACTÉRISTIQUES

  • Balcon
  • Animaux acceptes
  • Vue dégagée

GALERIE PHOTOS